FOR SALE 1 BEDROOM PLUD DEN UNIT AT OAK PARK CONDOS
The Neighbourhoods of Oak Park is a new condo project by Ballantry Homes located at Oak Park Boulevard & Parkhaven Boulevard in Oakville.
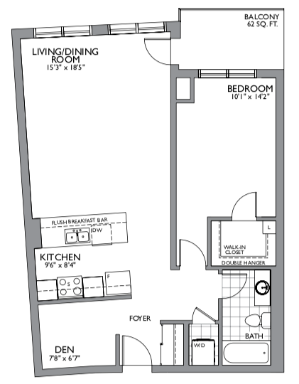
Unit Details:
Project Type: Condominium
Project Name: The Neighbourhoods of Oak Park Condos
Model Name: B3
Unit Type: 1 Bedroom plus Den, 1 Bathroom Penthouse
Exposure: South
Approximate Size: 859 SqFt
Floor Plan: See Below
Parking: Yes
Locker: Yes
Maintenance Fee: $0.36 Per SqFt Per Month
Estimated Occupancy: November 2019
Pricing Information:
Assignment Price: $499,990
Price/SqFt: $582
Original Purchase Price: $395,990
Deposit Paid to Developer by Seller: $40,000
Buyer’s Sum of Payment:
Seller’s Profit: $104,000
Deposit Paid to Developer by Seller: $40,000
Total Payment: $144,000
Payment Structure:
1st – Deposit – Due Upon Offer Acceptance: $48,000
2nd – After 4 Month: $48,000
3rd – Remaining Balance – Due Upon Developer’s Consent on Assignment: $48,000
Location Highlights:
- Has a walkscore of 82/100: walkable EVERYWHERE
- 7 minute drive to Downtown Oakville
- Walking distance to the Milton/Oakville and Oakville/York University Go Bus Stop
- Close to shops, restaurants and schools
- Nearby parks include Oak Park, Millbank Park and Memorial Park
For More Details
Register Below
Unit’s Floor Plan:
Building Rendering:
Map: Oak Park Boulevard & Parkhaven Boulevard, Oakville, ON, L6H 0E7
Requested Information
By requesting to receive details for this project, you agree and give us consent to send you electronic email notices with requested information and also for future projects. At anytime you wish, you may unsubscribe from receiving any further emails.
We hope to stay connected.
FOR ANY QUESTIONS, PLEASE CALL ONE OF OUR CONDOSDEAL TEAM MEMBERS.
For More Information Fill Form Below.


(2 votes, average: 4.00 out of 5)

















