WELCOME TO DUNDAS SQUARE GARDENS CONDO IN DOWNTOWN TORONTO
Dundas Square Gardens Condos is a newly completed condo project by Easton’s Group of Hotels and The Gupta Group located at 251 Jarvis Street in Toronto. The major intersection is Jarvis Street and Dundas Street East.
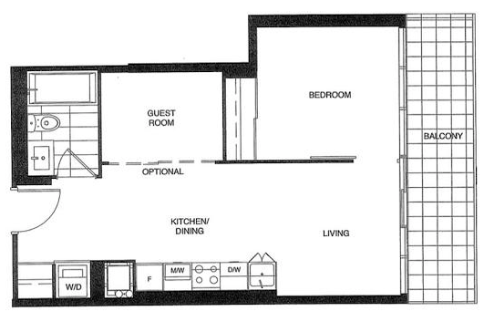
Dundas Square Gardens Condo Unit is a one bedroom plus den with one washroom, approximate size is 520 square feet + 97 square feet (balcony). The den can be used for a sofa bed or an office. This unit is facing east with a full sized walkout balcony with a beautiful view of Toronto and the Lake . The unit comes with new appliances: stainless steel fridge, stove, hood range, dishwasher, washer & dryer. The building also has outdoor amenities including 5 rooftop gardens, sky lounge with a grand lobby, lounge and party room, screening room and a rooftop terrace with a pool. Unit is for lease for $1,900. The unit also comes with a locker on the same level as the unit.
Location Highlights:
- Has a walkscore of 95/100: walkable EVERYWHERE
- Located in theMoss Park neighbourhood in Toronto
- 7 minute walk to the Dundas Subway Station
- Walking distance to Ryerson University, Dundas Square and Toronto Eaton Centre
- Close to shops, restaurants and schools
- Has a transit score of 100/100: world class public transportation
- Nearby parks include Moss Park, Joseph Sheard Parkette and Allan Garden
For More Details
Register Below
Floor Plan:
Site Map: 251 Jarvis St, Toronto, ON M5B 2C2
Requested Information
By requesting to receive details for this project, you agree and give us consent to send you electronic email notices with requested information and also for future projects. At anytime you wish, you may unsubscribe from receiving any further emails.
We hope to stay connected.
FOR ANY QUESTIONS, PLEASE CALL ONE OF OUR CONDOSDEAL TEAM MEMBERS.
For More Information Fill Form Below.

















